Экстремальный спорт стал неотъемлемой частью современной спортивной жизни и скейт парки являются его главной составляющей. Скейтпарк – это современное решение для общественного пространства. Зачастую именно он становится объектом притяжения молодежи во всём населенном пункте.
Проектирование скейт парков - это сложный и творческий процесс. Любая мелочь и деталь может повлиять на то качественным будет объект или нет.
Здесь важно учесть всё: направленность скейт парка (районный, городской, для соревнований и др.),используемые материалы, уровень райдеров, пропускная способность, дисциплины(скейт, BMX, ролики, самокат), зонирование, геометрия и тип скейт парка (боул, плаза, стрит, флай, флоу парк), освещение, входная группа и прочие важные моменты.
Архитектурное проектирование скейт парков(дизайн и визуализация)
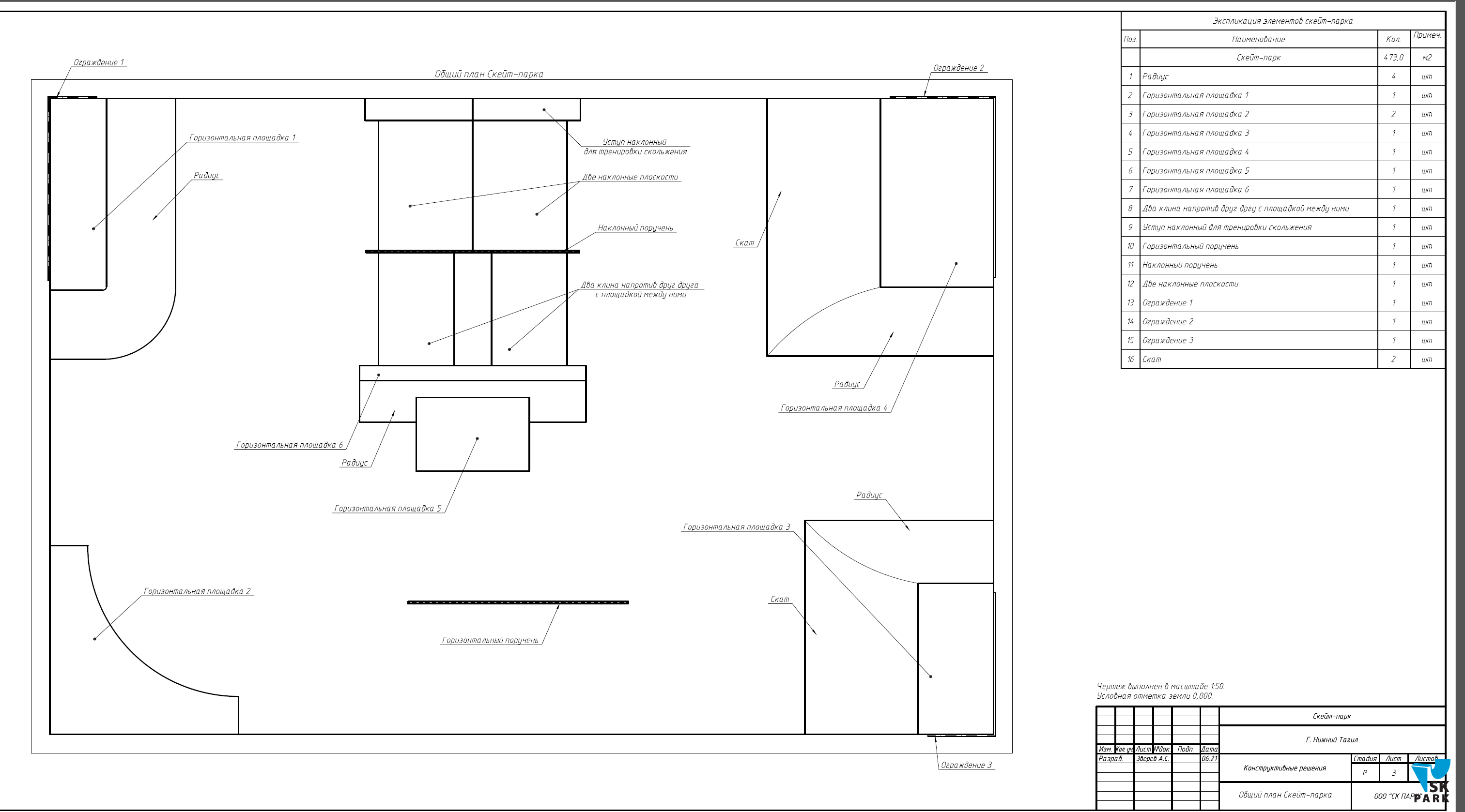
Строительство скейтпарка всегда начинается с заданного концептуального дизайн-проекта. Это очень важная часть, так как именно от нее зависит качество, функциональность и безопасность будущего скейт парка. На этом этапе важно продумать множество деталей: траектории катания, высоты и длины перил/граней, верно заданные радиуса, выкаты, длины и резкость скатов, уровень наклонов, расстояния между фигурами, толщину коупинга и многое другое.
Наша компания предлагает самые современные, соответствующие мировым стандартам проекты скейт парков. Мы реализуем как типовые проекты, так и индивидуальные по техническому заданию заказчика.
Мы проектируем скейтпарки бесплатно, прежде всего потомучто нам небезразлична данная индустрия. Мы заинтересованы, чтобы проекты скейт парков делали люди имеющие в этом большой опыт и навыки, чтобы появлялись действительно качественные спортивные объекты на которых можно тренироваться и где молодежь может проводить свой досуг, встречаться и общаться, обмениваться знаниями и опытом – ведь от этого в конечном итоге зависит прогресс райдеров и эволюция таких экстремальных олимпийских видов спорта как скейтбординг и BMX, а также таких не менее важных дисциплин как самокат и ролики!
Мы интегрируем наши проекты в общую концепцию благоустройства и предоставляем заказчику генплан.
Рабочее проектирование скейт парков
Данная услуга относится к бетонным скейт паркам и асфальтовым памп трекам. Перед строительством мы разрабатываем рабочую документацию стадий “Р” или “П” и согласовываем ее с заказчиком. Разделы рабочей документации варьируются в зависимости от конкретной задачи, но как правило это:
Раздел 1-«Пояснительная записка»
Раздел 2-«Схема планировочной организации земельного участка»
Раздел 3-«Архитектурные решения скейт парка»
Раздел 4- «Конструктивные и объемно-планировочные решения»
Раздел 5- «Система водоотведения» (при необходимости)
Раздел 6- «Смета на строительство скейтпарка» (при необходимости)
От правильного рабочего проекта зависит качество, безопасность и сроки выполнения строительных работ. Наша компания содержит в штате высококвалифицированных инженеров и имеет все необходимые выписки СРО на проектирование.
Нормативная документация по которой мы работаем при проектировании скейт парков:
В проектировании каждого объекта мы используем не только наши технические знания, но и спортивный опыт, углубляясь во все нюансы с точки зрения эксплуатации скейт площадки.
Мы используем наш многолетний опыт в строительстве и проектировании, для создания наиболее безопасных, функциональных, долговечных и интересных скейт парков. Также мы учитываем уровень и аудиторию райдеров(ролики, скейтборд, BMX, самокат), а также производим анализ уже существующих скейт-парков на территории населенного пункта(если таковые имеются).
Постоянная коммуникация между нами и местными райдерами, позволяет создавать скейт парки и скейт площадки, максимально эффективными для конкретного региона или города.
Скейт парк это – не просто хаотичный набор фигур расставленный на площадке. Скейтпарк - это комплексное проектное и безопасное решение, позволяющее райдерам рационально использовать каждую фигуру скейт-парка и его элементы!
Компания SKpark занимается проектированием следующих спортивных объектов для экстремальных видов спорта:
Мы разрабатываем проекты из типовых элементов, а также создаём индивидуальные проекты с нуля.
Для разработки проекта скейт парка нам понадобится следующая информация:
Одной из отличительных особенностей бетонных скейт парков является то, что их можно строить абсолютно любых форм, что дает возможность создавать архитектурно-привлекательный дизайн, который очень хорошо вписывается в общественное пространство. Проект бетонного скейтпарка прежде всего зависит от размеров площадки, геологии участка(состояние почвы, грунтовые воды и др), топографической съемки, планируемого бюджета и направленности(дисциплины). Огромный выбор цветовых решений от производителей бетона и красителей позволяют реализовать любые задумки, в том числе нанести на скейт-парк логотип, разметку, инфографику и другие отличительные знаки.
Проекты для крытых скейт парков зависят, прежде всего от конфигурации и размеров самого помещения, а также высоты потолков.
Одним из главных преимуществ крытых скейт парков является возможность его круглогодичной эксплуатации. Это особенно важно для олимпийских дисциплин таких как скейтбординг и BMX. Мы проектировали множество аналогичных объектов, в числе которых самый крупный крытый скейт парк “Sportex”, площадью 4000 кв.м. и поэтому понимаем все нюансы этих объектов.
Наша компания, также успешно занимается проектированием малых архитектурных форм.
Красивые и функциональные малые формы – это залог успеха при создании любого общественного пространства.
Основа успешной эксплуатации любого памп трека, это его верная заданная траектория и геометрия. Памп трек должен «Пампить» (разгонять), в противном случае это будет просто архитектурное сооружение не имеющее ничего общего со спортивной трассой предназначенной для катания.
Как и бетонные скейтпарки, проекты памп треков зависят от размеров площадки, бюджета, геологии, а также от целей которые вы преследуете: любительский памп трек или профессиональный. Наша компания спроектировала и построила самый длинный асфальтовый памп трек в России в г. Тарко-Сале , а также другие памп треки расположенные в разных регионах России.

В настоящее время именно спортивные кластеры набирают бешеную популярность среди молодого поколения. Экстрим кластеры - это современный формат спортивных площадок. Основное их преимущество это комплексный подход в создании общественных пространств.